Hier finden Sie wichtige Dokumente

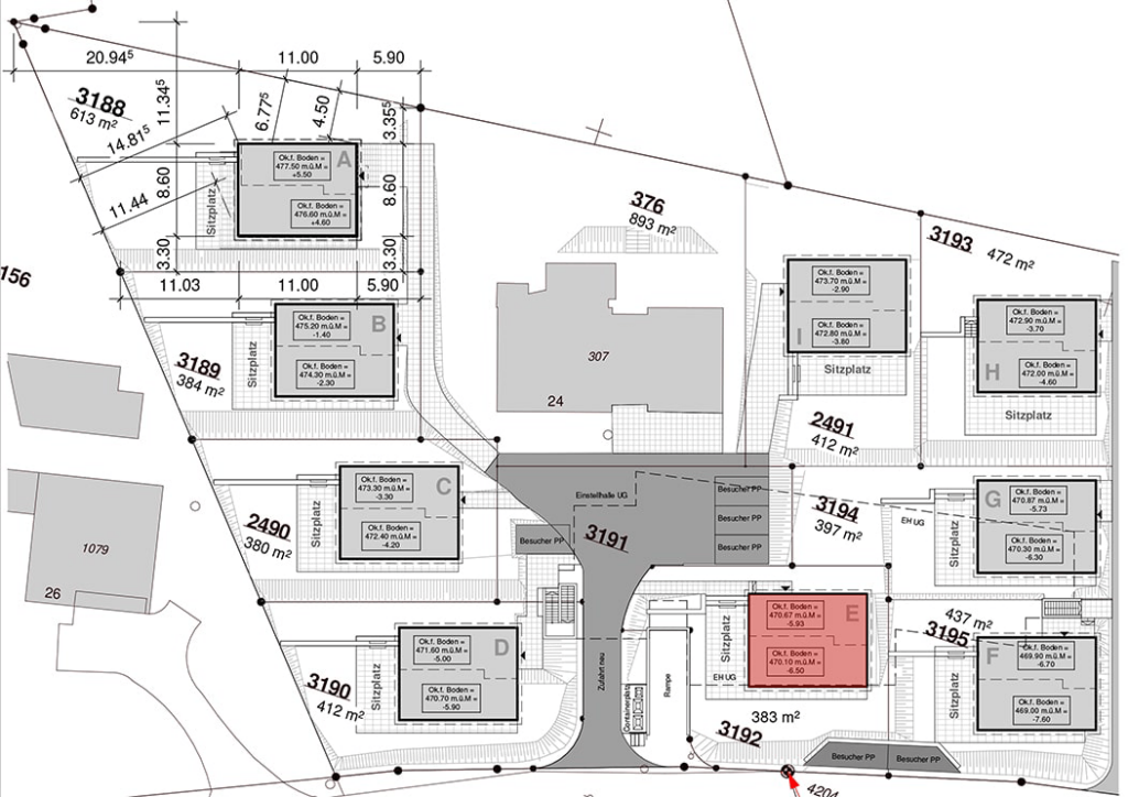
Haus A

Neubau 5 ½ Zimmer-Einfamilienhaus, Parz.-Nr. 3188

Haus B

Neubau 5 ½ Zimmer-Einfamilienhaus, Parz.-Nr. 3189

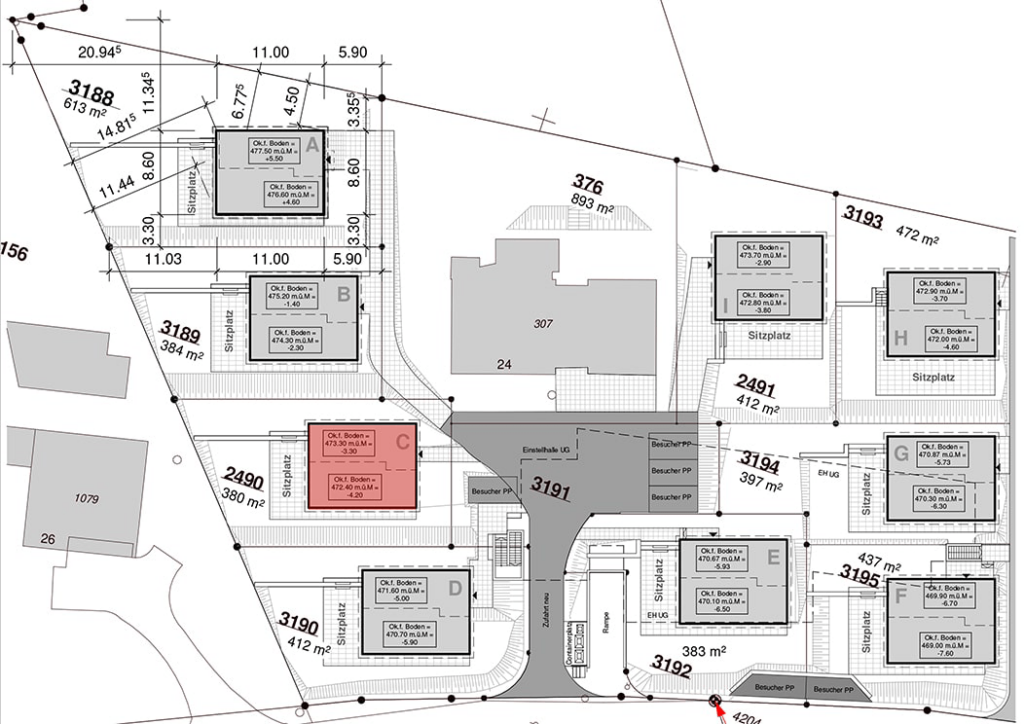
Haus C

Neubau 5 ½ Zimmer-Einfamilienhaus, Parz.-Nr. 2490

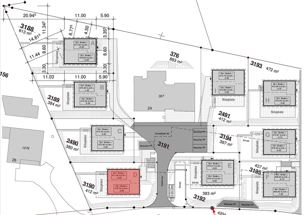
Haus D

Neubau 5 ½ Zimmer-Einfamilienhaus, Parz.-Nr. 3190

Haus E

Neubau 5 ½ Zimmer-Einfamilienhaus, Parz.-Nr. 3192

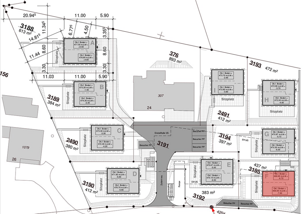
Haus F

Neubau 5 ½ Zimmer-Einfamilienhaus, Parz.-Nr. 3195

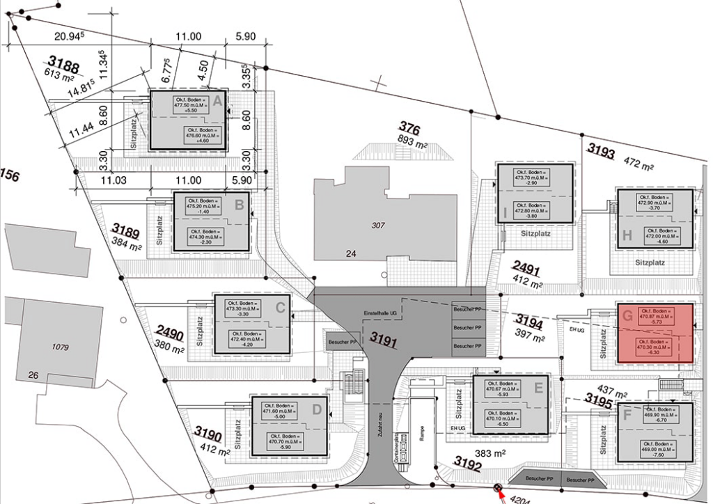
Haus G

Neubau 5 ½ Zimmer-Einfamilienhaus, Parz.-Nr. 3194

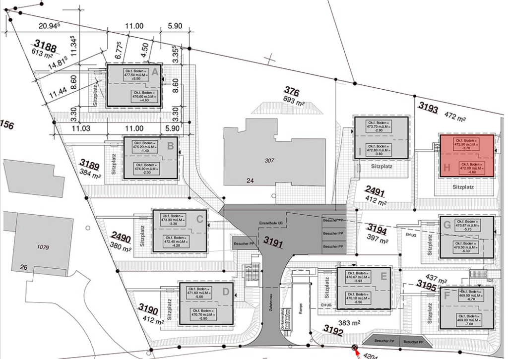
Haus H

Neubau 5 ½ Zimmer-Einfamilienhaus, Parz.-Nr.3193

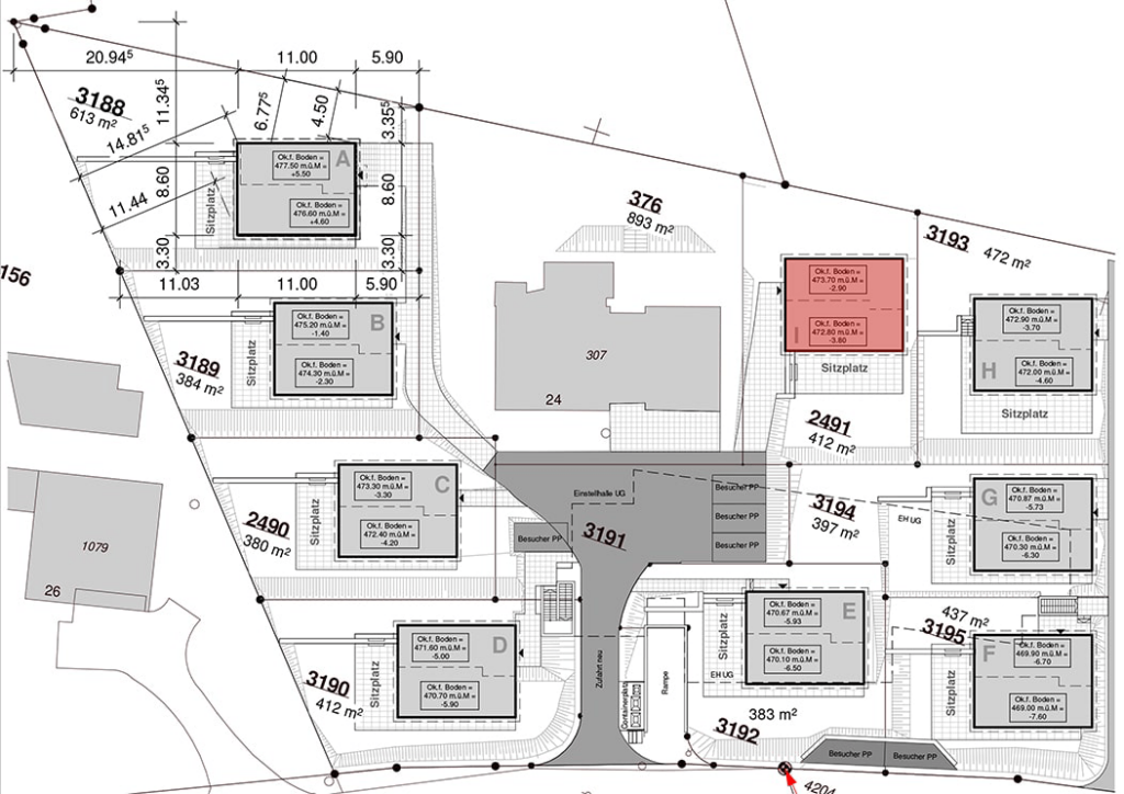
Haus I

Neubau 5 ½ Zimmer-Einfamilienhaus, Parz.-Nr.3191